節流孔板

- AK-SX7083流量積算儀
- ◆ 本儀表適合于蒸汽和一般氣體的測量,可用于內部計量和貿易計量。 ◆ 本儀表符合新版流量積算儀檢定規程《JJG1003-2016》 ◆ 本安裝使用手冊是以具備一定的流量計經驗知識為對象編寫的,使

- 數顯壓力表
- AK-SXYLB數字壓力表為全電子結構。前端采用高精度壓阻式壓力傳感器,輸出信號由高精度,低溫漂的放大器放大處理,送入高精度的A/D轉換器,轉換成微處理器可以處理的數字信號,經過運算處理,

- 乙酸乙酯液位計
- 乙酸乙酯液位計是公司引進吸收國外同類產品,并加以提高的產品。系列產品可以做到高密封、防泄漏和在高溫、高壓、高粘度、強腐蝕性條件下可靠地測量液位,全過程測量無盲區
節流孔板
一、概述
AK-LG系列節流孔板又稱為差壓式流量計,是由一次檢測件(節流件)和二次裝置(差壓變送器和流量顯示儀)組成廣泛應用于氣體.蒸汽和液體的流量測量.具有結構簡單,維修方便,性能穩定,使用可靠等特點。
節流孔板是標準節流件可不需標定直接依照國家標準,1.國家標準GB2624-81<流量測量節流裝置的設計安裝和使用>;2.國際標準ISO5167<國際標準組織規定的各種節流裝置>3.化工部標準GJ516-87-HK06
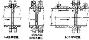
二、外形

三、工作原理
充滿管道的流體流經管道內的節流裝置,在節流件附近造成局部收縮,流速增加,在其上、下游兩側產生靜壓力差。
在已知有關參數的條件下,根據流動連續性原理和伯努利方程可以推導出差壓與流量之間的關系而求得流量。其基本公式如下:

c-流出系數 無量綱
d-工作條件下節流件的節流孔或喉部直徑
D-工作條件下上游管道內徑
qm-質量流量 Kg/s
qv-體積流量 m3/s
?-直徑比d/D 無量綱
流體的密度Kg/m3
可膨脹性系數 無量綱
四、結構
節流孔板組成
1. 節流件:標準孔板、標準噴嘴、長徑噴嘴、1/4圓孔板、雙重孔板、偏心孔板、圓缺孔板、錐形入口孔板等
2. 取壓裝置:環室、取壓法蘭、夾持環、導壓管等
3. 連接法蘭(國家標準、各種標準及其它設計部門的法蘭) 、緊固件。
4. 測量管
節流裝置適用范圍及有關技術指標
五、節流孔板產品選型:
|
型號 |
|
||||||||
|
AK-LGB |
節流孔板(孔板流量計) |
||||||||
|
|
代號 |
按其結構特征的兩大基本分類 |
|||||||
|
|
K |
孔板 |
|||||||
|
|
P |
噴嘴等 |
|||||||
|
|
代號 |
公稱壓力(105Pa) |
|||||||
|
|
2.5 |
2.5 |
|||||||
|
|
10 |
10 |
|||||||
|
|
16 |
16 |
|||||||
|
|
25 |
25 |
|||||||
|
|
64 |
64 |
|||||||
|
|
100 |
100 |
|||||||
|
|
200 |
200 |
|||||||
|
|
代號 |
口徑(mm) |
|||||||
|
|
10~1600 |
10~1600mm |
|||||||
|
|
代號 |
按其結構形式細分 |
|||||||
|
|
H |
標準孔板(環室) |
|||||||
|
|
Y |
標準孔板(法蘭) |
|||||||
|
|
K |
標準孔板(鉆孔) |
|||||||
|
|
I |
ISA 1932噴嘴 |
|||||||
|
|
L |
長徑噴嘴 |
|||||||
|
|
W |
文丘利噴嘴 |
|||||||
|
|
G |
經典文丘利管 |
|||||||
|
|
S |
雙重孔板 |
|||||||
|
|
Q |
圓缺孔板 |
|||||||
|
|
Z |
錐形入口孔板 |
|||||||
|
|
R |
1/4圓孔板 |
|||||||
|
|
P |
偏心孔板 |
|||||||
|
|
N |
整體(內藏)孔板 |
|||||||
|
|
X |
楔形孔板 |
|||||||
|
|
T |
不在上述之列的特殊節流裝置 |
|||||||
|
|
代號 |
介質 |
|||||||
|
|
1 |
液體 |
|||||||
|
|
2 |
氣體 |
|||||||
|
|
3 |
蒸汽 |
|||||||
|
|
4 |
高溫液體 |
|||||||
|
|
代號 |
補償形式 |
|||||||
|
|
N |
不帶壓力、溫度補償 |
|||||||
|
|
P |
帶壓力補償輸出 |
|||||||
|
|
T |
帶溫度補償輸出 |
|||||||
|
|
Q |
帶壓力、溫度補償輸出 |
|||||||
|
|
代號 |
變送器差壓量程范圍 |
|||||||
|
|
0 |
微差壓量程 |
|||||||
|
|
1 |
低差壓量程 |
|||||||
|
|
2 |
中差壓量程 |
|||||||
|
|
3 |
高差壓量程 |
|||||||
|
|
代號 |
是否帶現場顯示 |
|||||||
|
|
W |
節流裝置傳感器 |
|||||||
|
|
X |
智能節流裝置(流量計) |
|||||||
相關資訊
聯系奧科
固話:0517-86919886
傳真:0517-86919886
手機:15261725556
地址:江蘇金湖縣工業園區工一路




